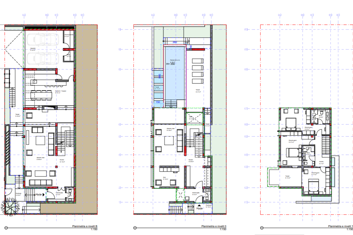
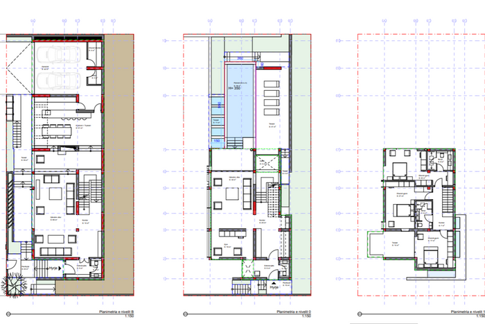
Ofrohet për shitje shtëpia me sipërfaqe 446m², me lokacion në Lagjen Marigona Sun, Prishitnë.
Marigona Sun ofron një përvojë jetese ekskluzive, me 157 shtëpi që tejkalojnë kufijtë e imagjinatës në funksionalitet dhe estetikë. Këto shtëpi, që variojnë nga 318m² deri në 870m², ndahen në shtatë tipologji të ndryshme për të plotësuar të gjitha kërkesat dhe dëshirat e çdo banori që ka privilegjin të jetë pjesë e këtij komuniteti.
Shtëpia ka sipërfaqe 446m², Tipi Cyra, me orientim nga të gjitha anët, është e strukturuar në suteren, përdhes dhe një kat me këtë renditje të hapësirave të brendshme: dy hapësira qëndrim ditor, kuzhinë me tryezari, tri dhoma gjumi me njërën prej tyre master, dy banjo, dy tualete, depo, dhomë teknike, dy ballkone, tarracë me pishinë dhe garazh.
Sistemin e ngrohjes e ka të mundësuar me pompë termike, ka hapësirë kompakte por dinamike, të shtrirë në oborre dhe pamje të përshtatura bukur për t’u shijuar maksimalisht, ka hapësirë të mjaftueshme për vendparkim si dhe garazh për dy vetura.
E vendosur mes kodrave piktoreske të Prishtinës, në lartësinë prej 801 metrash mbi nivelin e detit, Marigona Sun jo vetëm që ofron sofistikim arkitektonik, por gjithashtu përfiton nga ajri i pastër që vjen nga Parku i Gërmisë dhe liqeni mahnitës i Badovcit. Shtëpitë do të ofrojnë gjithashtu pamje panoramike të kryeqytetit tonë.
*Lagjja pritet të përfundojë ndërtimet gjatë viteve 2029 / 2030.
Shuma që e paguan vetë. Pjesa tjetër llogaritet si kredi.
Numri i viteve për kthimin e kredisë.
Të hyrat neto mujore të familjes (gjithsej).
P.sh. 5 ose 5.5. Më vonë mund të mbushet automatikisht sipas bankës.
Shuma e kredisë
784,960€
Parapagim (%)
20,0%
Kësti mujor i përfafët
8,325.72€
Vlerësimi i ngarkesës së kredisë
832,6% - e të hyrave shkojnë në këst. Shumica e bankave mund të mos e aprovojnë.
Ky kalkulator shërben vetëm për qëllime informuese dhe ofron një vlerësim paraprak.

Duke mbushur formën e mëposhtme agjenti ynë do të ju informojë rreth pyetjeve tuaja!