Ofrohet për shitje banesa me sipërfaqe banimi 95.49m², sipërfaqe neto 70,27m², në Green Coast Village, projekt që po ndërtohet në bregdetin e Palasës, një prej gjireve më të bukura të Rivierës Shqiptare, i cili ofron standard të lartë të jetesës dhe arkitekturë moderne.
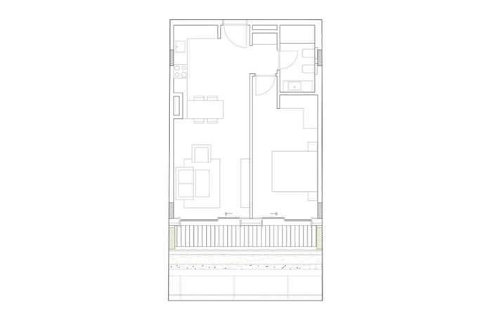
Banesa ka orientim nga jugu dhe perëndimi dhe ka këtë renditje të hapësirave të brendshme; qëndrim ditor, kuzhinë, një dhomë gjumi, banjo dhe tarracë.
Në cmim përfshihet depo me sipërfaqe 22.10m² dhe parking me sipërfaqe 12.50m² ndërsa banesa sipërfaqe të përbashkët ka 25.22m² të përbashkët dhe verandë me sipërfaqe 5.73m².
Simbol i dinamizmit, modernizmit dhe relaksit, me arkitekturë mesdhetare, ku fasadat e mëdha mundësojnë bashkëveprimin me natyrën e rrallë qe ofron bregdeti i Palasës, Green Coast Village është konceptuar për të sjellë jetesë komode përgjatë gjithë vitit.
Ky projekt përmban shërbime që përfshijnë: hotel me 5 yje, restorante, bare, supermarkete, qendër shëndetësore, palestër, sporte ujore, plazh të dedikuar, ambient të dedikuar për fëmijë, shesh qendror.
Pozicioni strategjik, vlera dhe shërbimet e bëjnë Green Coast Village destinacion unik të rivierës shqiptare.
Projekti do të jetë tërësisht i përfunduar në fund të vitit 2026.
Shuma që e paguan vetë. Pjesa tjetër llogaritet si kredi.
Numri i viteve për kthimin e kredisë.
Të hyrat neto mujore të familjes (gjithsej).
P.sh. 5 ose 5.5. Më vonë mund të mbushet automatikisht sipas bankës.
Shuma e kredisë
316,800€
Parapagim (%)
20,0%
Kësti mujor i përfafët
3,360.16€
Vlerësimi i ngarkesës së kredisë
336,0% - e të hyrave shkojnë në këst. Shumica e bankave mund të mos e aprovojnë.
Ky kalkulator shërben vetëm për qëllime informuese dhe ofron një vlerësim paraprak.

Duke mbushur formën e mëposhtme agjenti ynë do të ju informojë rreth pyetjeve tuaja!