Ofrohet për shitje shtëpia me sipërfaqe 384m², me lokacion në Lagjen Marigona Sun, Prishitnë.
Marigona Sun ofron një përvojë jetese ekskluzive, me 157 shtëpi që tejkalojnë kufijtë e imagjinatës në funksionalitet dhe estetikë. Këto shtëpi, që variojnë nga 318m² deri në 870m², ndahen në shtatë tipologji të ndryshme për të plotësuar të gjitha kërkesat dhe dëshirat e çdo banori që ka privilegjin të jetë pjesë e këtij komuniteti.
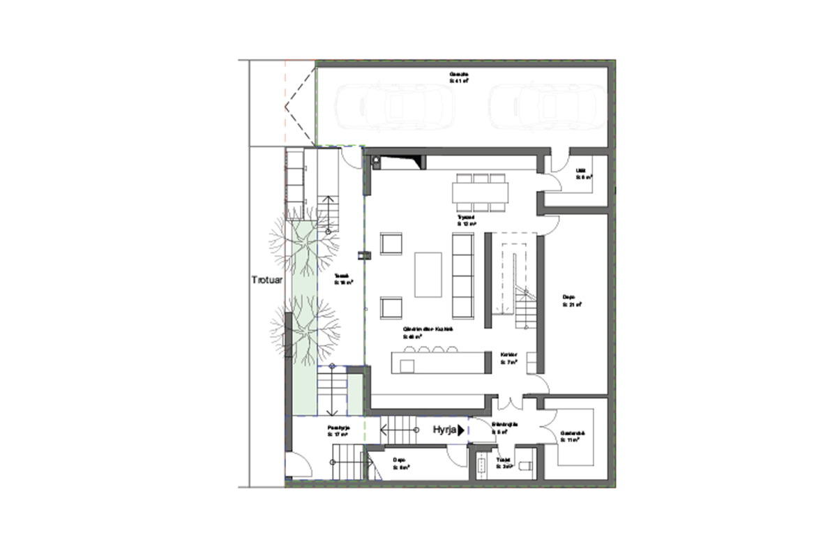
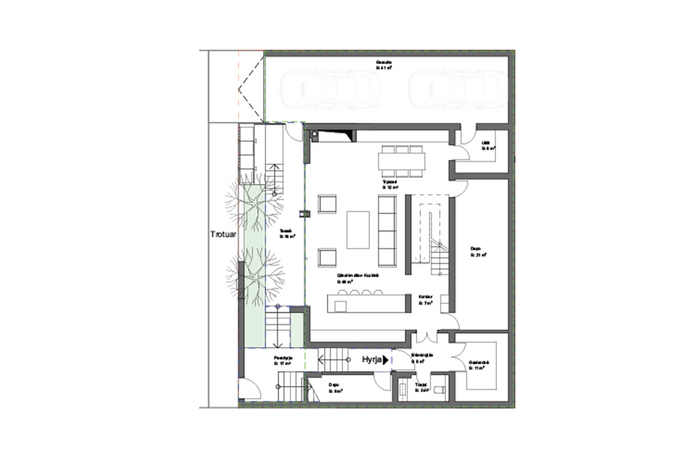
Shtëpia e prezantuar i takon tipit Solene, ka sipërfaqe 384m² me orientim nga të gjitha anët, është e strukturuar në sutetren, përdhes dhe një kat me këtë renditje të hapësirave të brendshme:
Në suteren ka qëndrim ditor, kuzhinë me tryezari, utilit, dy depo dhe garderober;
Në përdhes ka një tjetër hapësirë për qëndrim ditor, zyrë, tualet, një ballkon dhe terasë;
Në katin e parë ka tri dhoma gjumi me njërën prej tyre master me banjo të veçantë, një tjetër banjo dhe terasën.
Sistemin e ngrohjes e ka të mundësuar me pompë termike, ka hapësirë kompakte por dinamike, të shtrirë në oborre dhe pamje të përshtatura bukur për t’u shijuar maksimalisht, ka hapësirë të mjaftueshme për vendparkim si dhe garazh për dy vetura.
E vendosur mes kodrave piktoreske të Prishtinës, në lartësinë prej 801 metrash mbi nivelin e detit, Marigona Sun jo vetëm që ofron sofistikim arkitektonik, por gjithashtu përfiton nga ajri i pastër që vjen nga Parku i Gërmisë dhe liqeni mahnitës i Badovcit. Shtëpitë do të ofrojnë gjithashtu pamje panoramike të kryeqytetit tonë.
*Lagjja pritet të përfundojë ndërtimet në vitin 2028.
Shuma që e paguan vetë. Pjesa tjetër llogaritet si kredi.
Numri i viteve për kthimin e kredisë.
Të hyrat neto mujore të familjes (gjithsej).
P.sh. 5 ose 5.5. Më vonë mund të mbushet automatikisht sipas bankës.
Shuma e kredisë
645,120€
Parapagim (%)
20,0%
Kësti mujor i përfafët
6,842.5€
Vlerësimi i ngarkesës së kredisë
684,2% - e të hyrave shkojnë në këst. Shumica e bankave mund të mos e aprovojnë.
Ky kalkulator shërben vetëm për qëllime informuese dhe ofron një vlerësim paraprak.

Duke mbushur formën e mëposhtme agjenti ynë do të ju informojë rreth pyetjeve tuaja!