Prishtina e Re Prishtinë





Ofrohet për shitje banesa me sipërfaqe 107.42m², me lokacion te Prishtina e Re, në kompleksin Flux Prishtina View, ndërtim nga Flux.
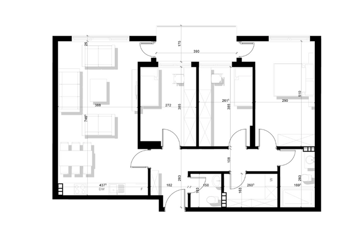
Banesa ka orientim nga perëndimi dhe ka këtë renditje të hapësirave të brendshme: qëndrim ditor, kuzhinë, tri dhoma të gjumit, banjo, tualet, utilit ddhe ballkon.
Sistemin e ngrohjes e ka të mundësuar me energji elektrike.
Ndërtesa ku ndodhet banesa është e pajisur me ashensor dhe ka hapësirë të mjaftueshme për vendparkim.
Prishtina e Re është një zonë e cila është duke u ndërtuar me potencial të jetë një ndër zonat e zhvilluara të qytetit me infrastrukturë të përfunduar, duke e bërë këtë lokacion shumë të përshtatshëm për banim dhe inevstime, zonë me ndërtime të reja kualitative në afërsi me të gjtiha shërbimet e nevojshme.
*Kompleksi pritet të përfundojë ndërtimet gjatë vitit 2027.

Duke mbushur formën e mëposhtme agjenti ynë do të ju informojë rreth pyetjeve tuaja!