Ju nuk keni ndonjë shpallje të ruajtur në listen e të preferuarave.
Prishtina e Re Prishtinë




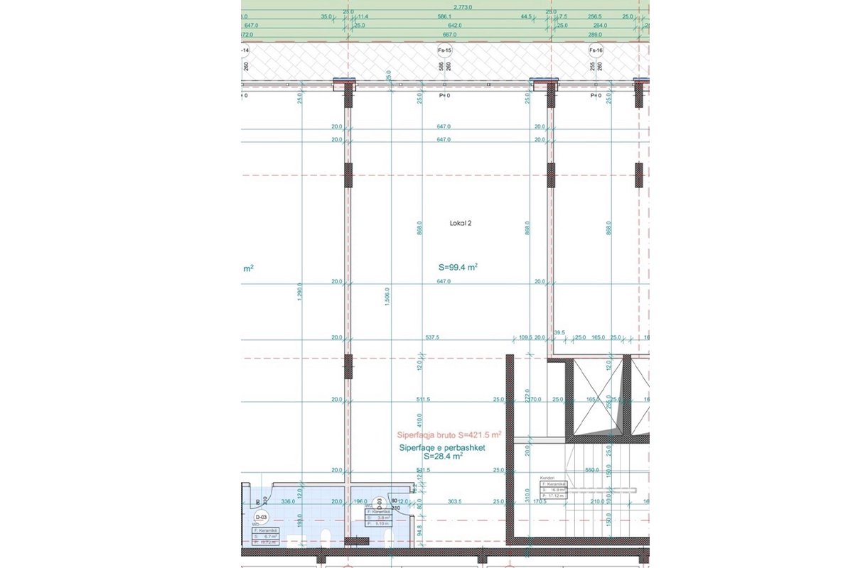
Ofrohet për shitje lokali me sipërfaqe 100m², me lokacion te Prishtina e Re, në Rrugën "Holger Petersen", në kompleksin Park Residence, ndërtim nga Berisha Group.
Lokali ka orientim nga perëndimi dhe jugu, ka një hapësirë të shfrytëzueshme pune dhe një tualet.
Sistemin e ngrohjes e ka të mundësuar me energji elektrike dhe ofron hapësirë të mjaftueshme për vendparkim.
Lokali ndodhet në njërën prej zonave më në zhvillim dhe ndërtim e sipër me qasje të afërt në rrugët kryesore dhe në afërsi me të gjitha shërbimet e nevojshme për zhvillimin e veprimtarive biznesore.
*Kompleksi pritet të përfundojë ndërtimet në muajin Qershor të vitit 2026.

Duke mbushur formën e mëposhtme agjenti ynë do të ju informojë rreth pyetjeve tuaja!