Fushë Kosovë






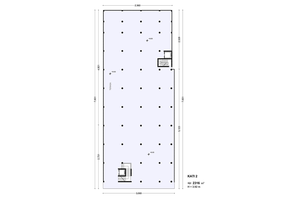
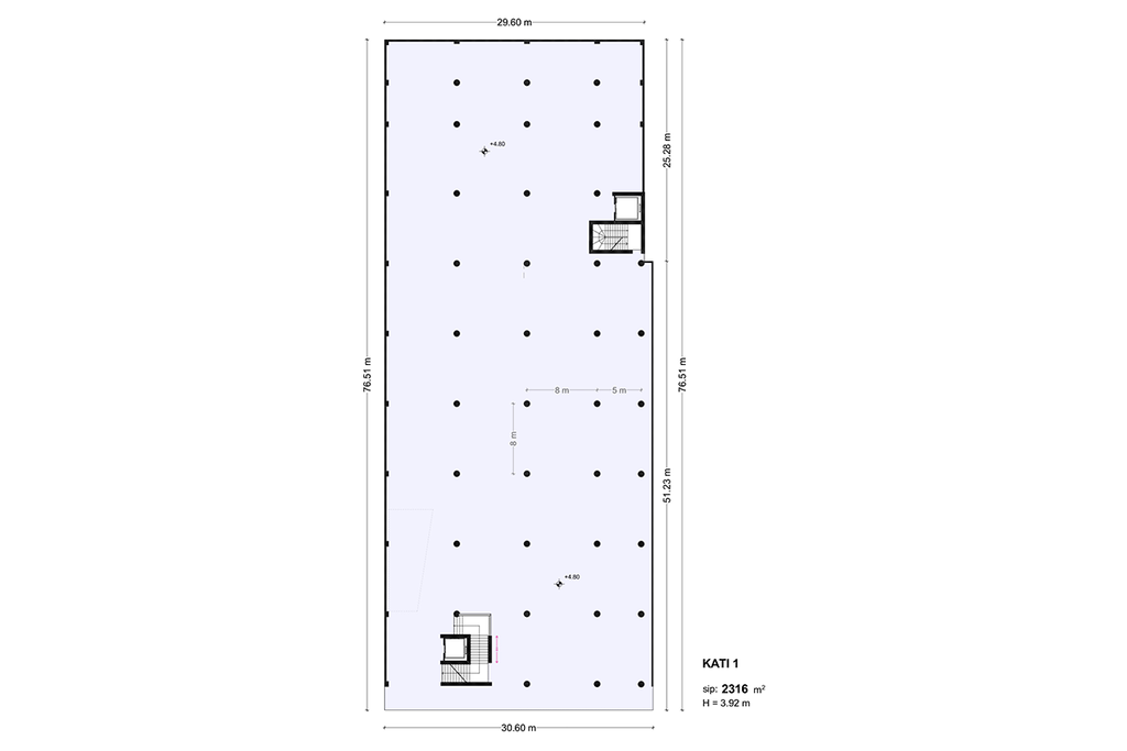
Objekti me sipërfaqe 14,307m² ndodhet në Fushë Kosovë, në zonën industriale Prishtinë – Fushë Kosovë. Një objekt me sipërfaqe shumë të madhe dhe planfikim për ndërtim të strukturuar me përpikshmëri, me një ndarje të objektit në këtë mënyrë: bodrumi -2 me sipërfaqe 2356m² dhe me 50 parkingje, bodrumi -1 me sipërfaqe 3008m² dhe 63 parkingje, sutereni me sipërfaqe 2394m², përdhesa me sipërfaqe 2186m², kati 1 me sipërfaqe 2316m² dhe kati 2 me sipërfaqe 2047m².
Secili kat ka metrazhë të ndryshme dhe strukturim të veçantë, duke filluar nga bodrumi -2 me gjatësi nga njëra anë 70.35m², ndërsa ana tjetër me 70.50m², kurse me gjerësi nga njëra anë 35.78m² dhe ana tjetër 31.19m², duke vazhduar me bodrumin -1, i cili ka gjatësi në njërën anë 92.40m² dhe anën tjetër 70.50m²+21.10m², ndërsa gjerësinë nga njëra anë 31.19m² dhe ana tjetër 29.60m². Sutereni ka metrazhë për nga gjatësia në njërën anë 76.51m² dhe ana tjetër me 43.32m²+33.28m² ku përfshin dy depo, ndërsa me gjerësi 31.16m².
Përdhesa ka gjatësi në të dyja anët 73.83m² dhe gjerësi 29.60m², ndërsa kati i parë gjatësi prej 73.83m² dhe gjerësi 30.60m². Kati i dytë ka sipërfaqe për nga gjatësia 7.651m² dhe për nga gjerësia 2.960m², në të përfshihet edhe një terasë. Objekti në shfrytëzim ka dy garazha me hapësirë shumë të madhe parking, si dhe ka dy hyrje. Çmimi është 6€ për m². Objekti përfundon në fund të 2022.

By filling out the following form, our agent will inform you about your questions!