You don't have any saved listings in your favorites list.
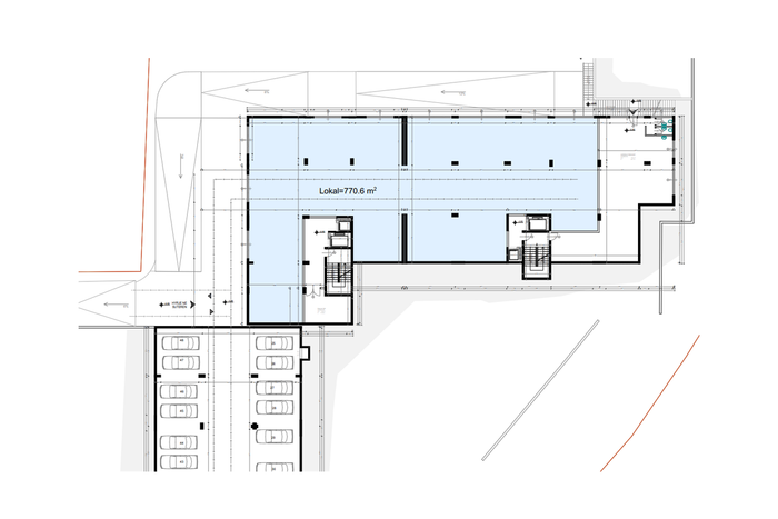
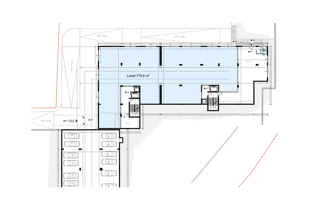
Prishtina e Re Prishtinë


Lokali me sipërfaqe 770m² ndodhet te Prishtina e Re, ndërtim i Condori SH.P.K., në kompleksin Dora, me orientim nga perëndimi dhe jugu.
Është funksional dhe të shfrytëzueshme ka një hapësirë pune të hapur, e cila mund të manovrohet, si dhe një tualet.
Sistemin e ngrohjes e ka me energji elektrike.
Lokali ka hapësirë parkingu të mjaftueshme për klientë.
Pozicionohet në një lokacion tejet të përshtatshëm për afarizëm dhe zhvillime biznesore, me qasje të shpejtë në rrugë kryesore.

By filling out the following form, our agent will inform you about your questions!