Prishtina e Re Prishtinë



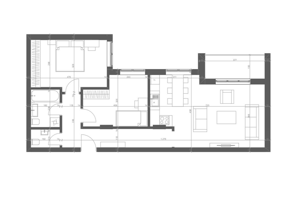
For sale is an apartment with an area of 91.7m², located in Prishtina e Re, on "Holger Petersen" Street, in the Park Residence complex, built by Berisha Group.
The apartment has a southern orientation and features the following layout: living room, kitchen, two bedrooms, bathroom, toilet, and balcony.
The heating system is powered by electric energy installed under the floor.
The building where the apartment is located is equipped with an elevator and has sufficient parking space.
The apartment is situated in an area that is under construction with the potential to become one of the developed areas of the city with completed infrastructure, making this location very suitable for living.
*The complex is under construction and is expected to be completed by the end of 2026.

By filling out the following form, our agent will inform you about your questions!