You don't have any saved listings in your favorites list.
Lagjja e Muhaxherëve Prishtinë



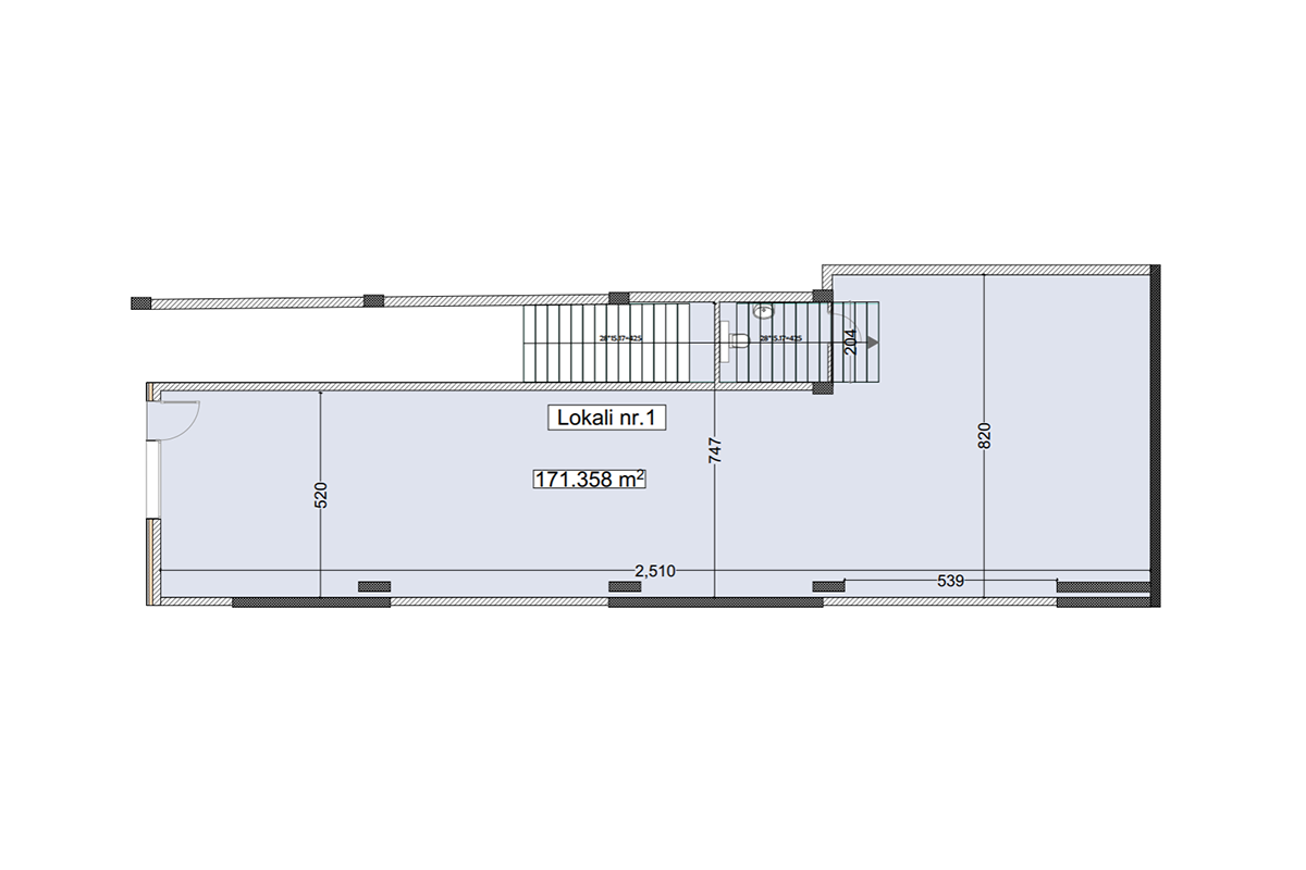
For sale is a commercial space with an area of 171.35m² located in the Muhaxherëve Neighborhood, on "Gazmend Zajmi" Street, built by R&Rukolli, in the Queen's Residence complex.
The space has a southern orientation and includes a usable work area and a bathroom.
The heating system is provided by electric energy installed under the floor.
The commercial space offers parking and is situated in an easily accessible location, making it suitable for business activities.

By filling out the following form, our agent will inform you about your questions!