Prishtina e Re Prishtinë


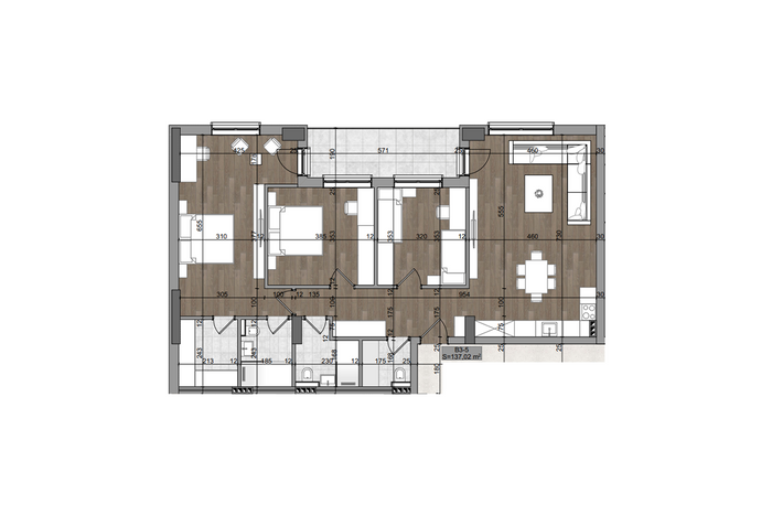
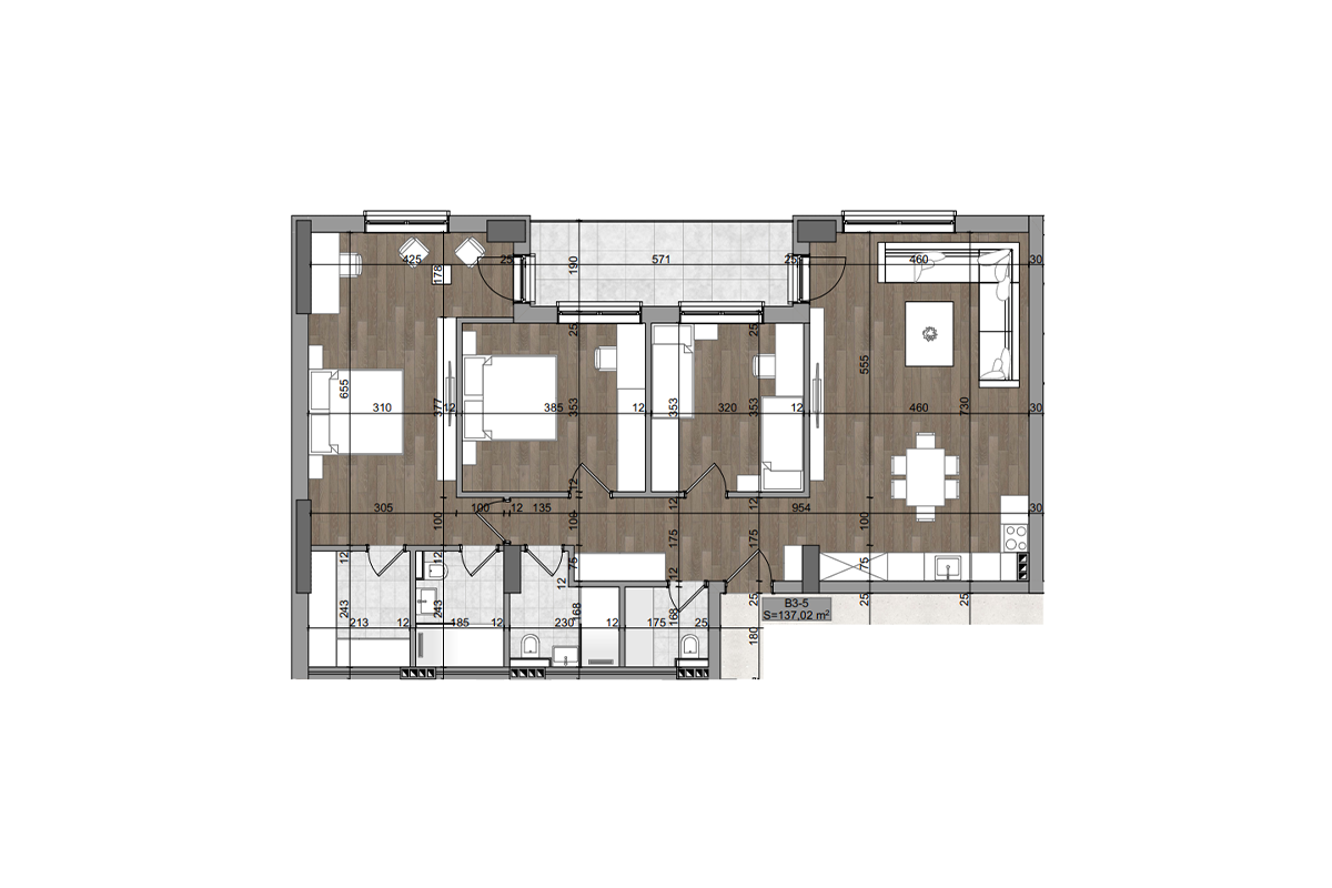
For sale is an apartment with an area of 137.02m², located in Prishtina e Re, in the Cima Grand Complex, built by Cima Construction.
The apartment is oriented to the east and north and has the following layout of internal spaces: living room, kitchen, three bedrooms, one bathroom, two toilets, and a terrace.
The heating system is electric.
The building where the apartment is located is equipped with an elevator and offers sufficient parking space.
Prishtina e Re is an area that is being developed with the potential to be one of the city's developed areas with completed infrastructure, making this location very suitable for living and investment, an area with new quality constructions close to all necessary services.
*The constructions of the complex are expected to be completed in 2028.

By filling out the following form, our agent will inform you about your questions!