Sie haben keine gespeicherten Anzeigen in Ihrer Favoritenliste.
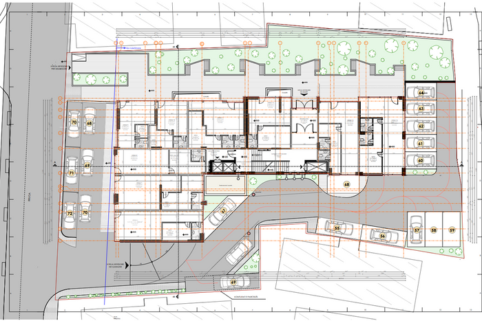
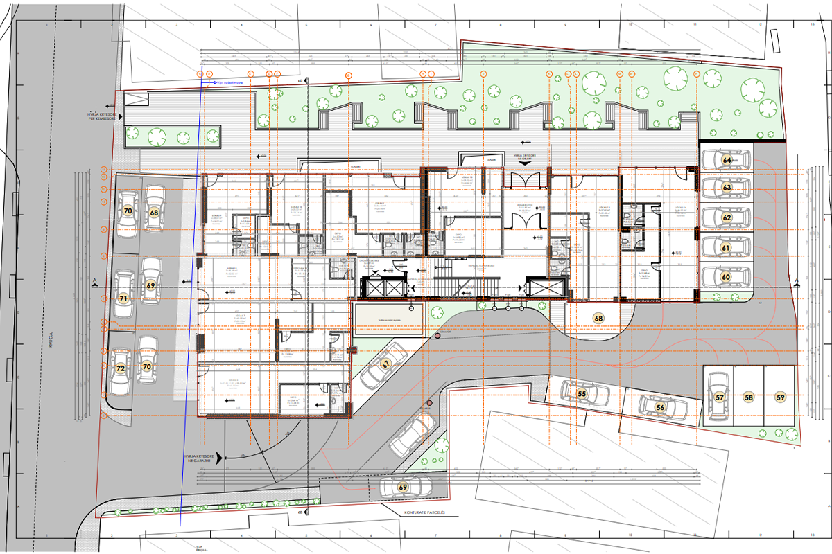
Lagjja e Muhaxherëve Prishtinë


*Bietet Verkaufsräume mit unterschiedlichen Flächen, von 44m² bis 280m².
Zum Verkauf steht ein Raum mit einer Fläche von 280m² in der Muhaxherëve Nachbarschaft, im Loren-Komplex, gebaut von Niti Construction.
Der Raum hat eine Ausrichtung von allen Seiten und verfügt über einen nutzbaren Arbeitsbereich und ein WC.
Das Heizsystem funktioniert mit elektrischer Energie.
Der Raum befindet sich in einer stark frequentierten Gegend, in der Nähe aller notwendigen Dienstleistungen für die Entwicklung von Geschäftstätigkeiten.

Durch das Ausfüllen des folgenden Formulars wird unser Agent Sie über Ihre Fragen informieren!