Vlorë







Zum Verkauf steht eine Villa mit einer Fläche von 218,94 m² im Green Coast Village, das an der Küste von Palasa gebaut wird, einer der schönsten Buchten der albanischen Riviera, die einen hohen Lebensstandard und moderne Architektur bietet.
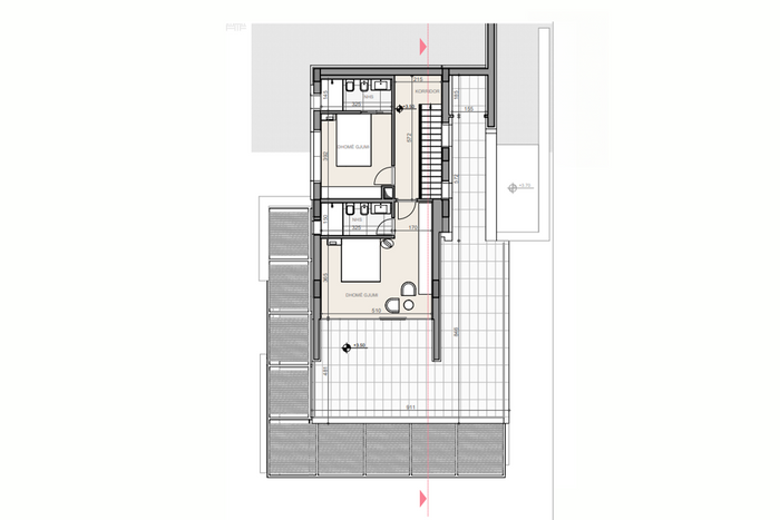
Die Villa hat eine Ausrichtung von allen Seiten, erstreckt sich über das Untergeschoss, das Erdgeschoss und ein Obergeschoss und hat folgende Anordnung der Innenräume: Wohnzimmer, Küche mit Essbereich, vier Schlafzimmer, darunter ein Hauptschlafzimmer, und jedes mit eigenem Bad, ein WC und eine Terrasse.
Die Villa befindet sich auf einem Grundstück von 5,37 Ar, mit einem Pool von 24,75 m² und einer Garage für zwei Autos mit einer Fläche von 30,00 m².
Ein Symbol für Dynamik, Modernität und Entspannung, mit mediterraner Architektur, bei der große Fassaden die Interaktion mit der seltenen Natur der Küste von Palasa ermöglichen, wurde das Green Coast Village konzipiert, um das ganze Jahr über komfortables Wohnen zu bieten.
Dieses Projekt umfasst Dienstleistungen wie: ein 5-Sterne-Hotel, Restaurants, Bars, Supermärkte, ein Gesundheitszentrum, ein Fitnessstudio, Wassersport, einen eigenen Strand, einen speziellen Bereich für Kinder und einen zentralen Platz.
Die strategische Lage, der Wert und die Dienstleistungen machen das Green Coast Village zu einem einzigartigen Ziel an der albanischen Riviera.
Die Villa wird im Jahr 2026 vollständig fertiggestellt sein.

Durch das Ausfüllen des folgenden Formulars wird unser Agent Sie über Ihre Fragen informieren!