Sie haben keine gespeicherten Anzeigen in Ihrer Favoritenliste.
Tophane Prishtinë





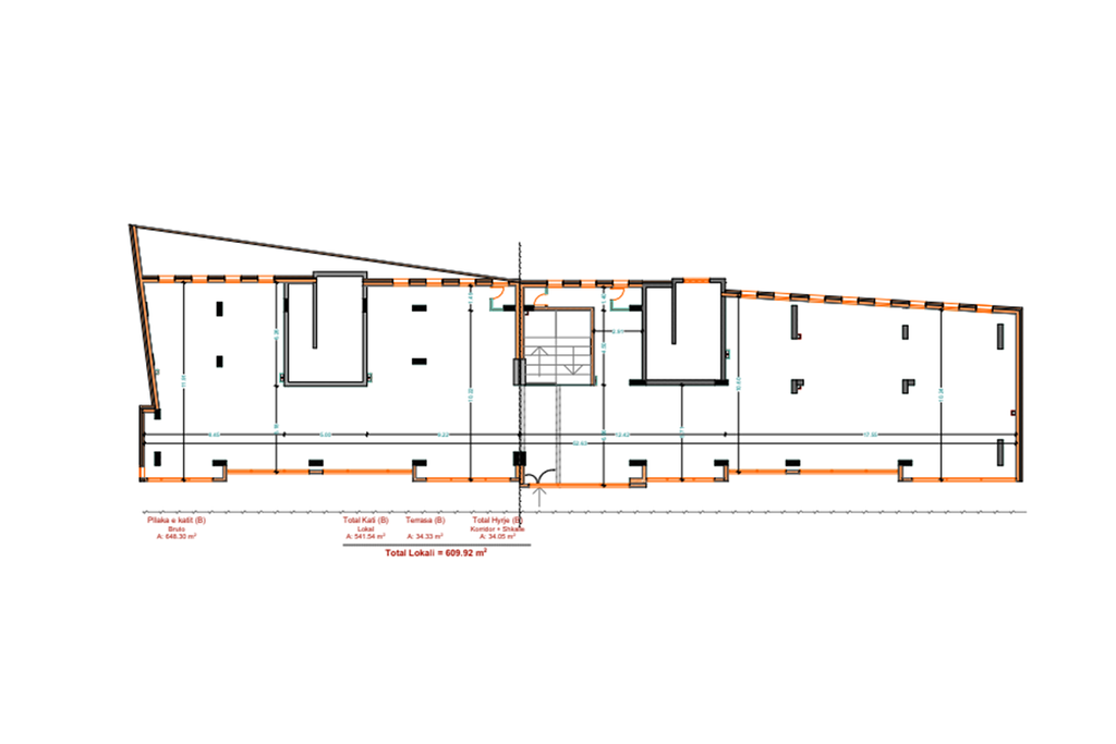
Die Fläche des Lokals beträgt 609,92 m² und befindet sich in Tophane, in der Nähe des Ministeriums für Gesundheit, mit Ausrichtung nach Osten und Westen.
Es verfügt über einen sehr großen nutzbaren Arbeitsbereich.
Es befindet sich an einem geeigneten Standort für die Entwicklung verschiedener Geschäftstätigkeiten, mit schnellem Zugang zu den Hauptstraßen.

Durch das Ausfüllen des folgenden Formulars wird unser Agent Sie über Ihre Fragen informieren!