Sie haben keine gespeicherten Anzeigen in Ihrer Favoritenliste.
Lagjja e Muhaxherëve Prishtinë



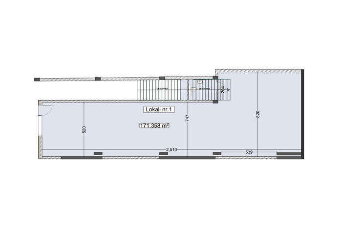
Zum Verkauf steht ein Lokal mit einer Fläche von 171,35 m² in der Muhaxherëve Nachbarschaft, in der "Gazmend Zajmi" Straße, gebaut von R&Rukolli, im Komplex Residenza e Mbretëreshës.
Das Lokal hat eine Südausrichtung und verfügt über einen nutzbaren Arbeitsbereich sowie ein WC.
Die Heizungsanlage wird durch unter dem Boden installierte elektrische Energie bereitgestellt.
Das Lokal bietet Parkplätze und befindet sich an einem leicht zugänglichen Standort, der sich für die Entwicklung von Geschäftstätigkeiten eignet.

Durch das Ausfüllen des folgenden Formulars wird unser Agent Sie über Ihre Fragen informieren!