Prishtina e Re Prishtinë





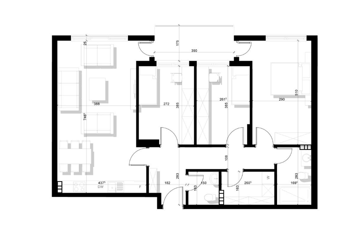
Zum Verkauf steht eine Wohnung mit einer Fläche von 107,42 m², gelegen in Prishtina e Re, im Komplex Flux Prishtina View, gebaut von Flux.
Die Wohnung hat eine Westausrichtung und folgende Anordnung der Innenräume: Wohnzimmer, Küche, drei Schlafzimmer, Badezimmer, Toilette, Abstellraum und Balkon.
Das Heizsystem wird mit elektrischer Energie betrieben.
Das Gebäude, in dem sich die Wohnung befindet, ist mit einem Aufzug ausgestattet und bietet ausreichend Parkmöglichkeiten.
Prishtina e Re ist ein Gebiet, das im Bau ist und das Potenzial hat, eines der entwickelten Gebiete der Stadt mit abgeschlossener Infrastruktur zu werden, was diesen Standort sehr geeignet für Wohn- und Investitionszwecke macht, mit qualitativ hochwertigen Neubauten in der Nähe aller notwendigen Dienstleistungen.
*Der Komplex wird voraussichtlich im Jahr 2027 fertiggestellt.

Durch das Ausfüllen des folgenden Formulars wird unser Agent Sie über Ihre Fragen informieren!