Sie haben keine gespeicherten Anzeigen in Ihrer Favoritenliste.
Lakrishtë Prishtinë






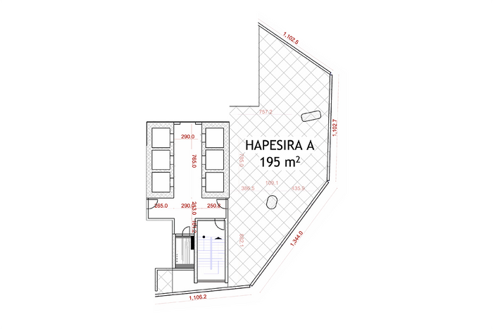
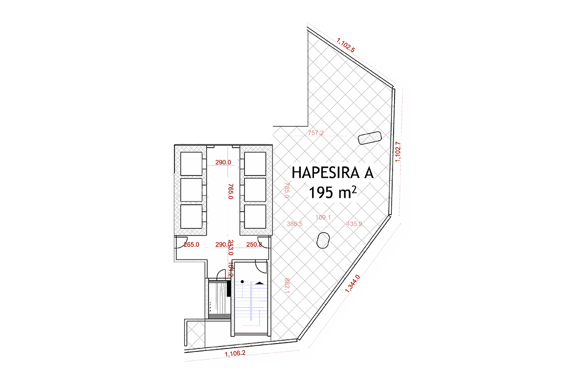
Zur Miete angeboten wird ein Lokal mit einer Fläche von 195m², gelegen im Stadtteil Lakrishtë, innerhalb des Komplexes Dukagjini Residence.
Das Lokal bietet einen offenen und atemberaubenden Blick auf die gesamte Stadt.
Diese Gewerbeimmobilie ist Teil eines der prestigeträchtigsten Komplexe in Pristina, mit moderner und fortschrittlicher Infrastruktur, die die Erfüllung aller Anforderungen ihrer Nutzer garantiert.
Die Investition in ein Lokal in diesem Komplex und an diesem Standort stellt eine besondere Möglichkeit für die Entwicklung und nachhaltige Wachstums des Geschäfts dar.

Durch das Ausfüllen des folgenden Formulars wird unser Agent Sie über Ihre Fragen informieren!