Prishtina e Re Prishtinë


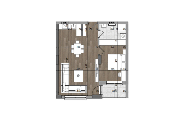
Zum Verkauf steht eine Wohnung mit einer Fläche von 64,27 m², gelegen in Prishtina e Re, im Cima Grand Complex, gebaut von Cima Construction.
Die Wohnung hat eine Ausrichtung nach Westen und Süden und verfügt über folgende Anordnung der Innenräume: Wohnzimmer, Küche, ein Schlafzimmer, ein Badezimmer und eine Terrasse.
Die Heizungsanlage wird elektrisch betrieben.
Das Gebäude, in dem sich die Wohnung befindet, ist mit einem Aufzug ausgestattet und bietet ausreichend Parkmöglichkeiten.
Prishtina e Re ist ein Gebiet, das im Bau ist und das Potenzial hat, eines der entwickelten Gebiete der Stadt mit abgeschlossener Infrastruktur zu werden, was diesen Standort sehr geeignet für Wohn- und Investitionszwecke macht, mit neuen qualitativ hochwertigen Bauten in der Nähe aller notwendigen Dienstleistungen.
*Die Bauarbeiten des Komplexes sollen im Jahr 2028 abgeschlossen sein.

Durch das Ausfüllen des folgenden Formulars wird unser Agent Sie über Ihre Fragen informieren!