Lagjja e Muhaxherëve Prishtinë


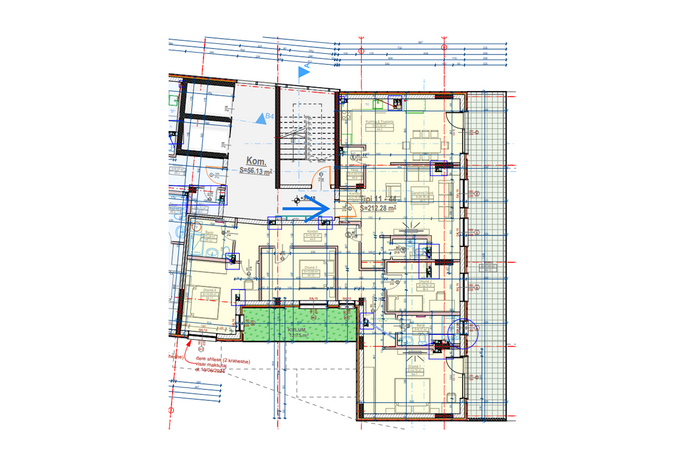
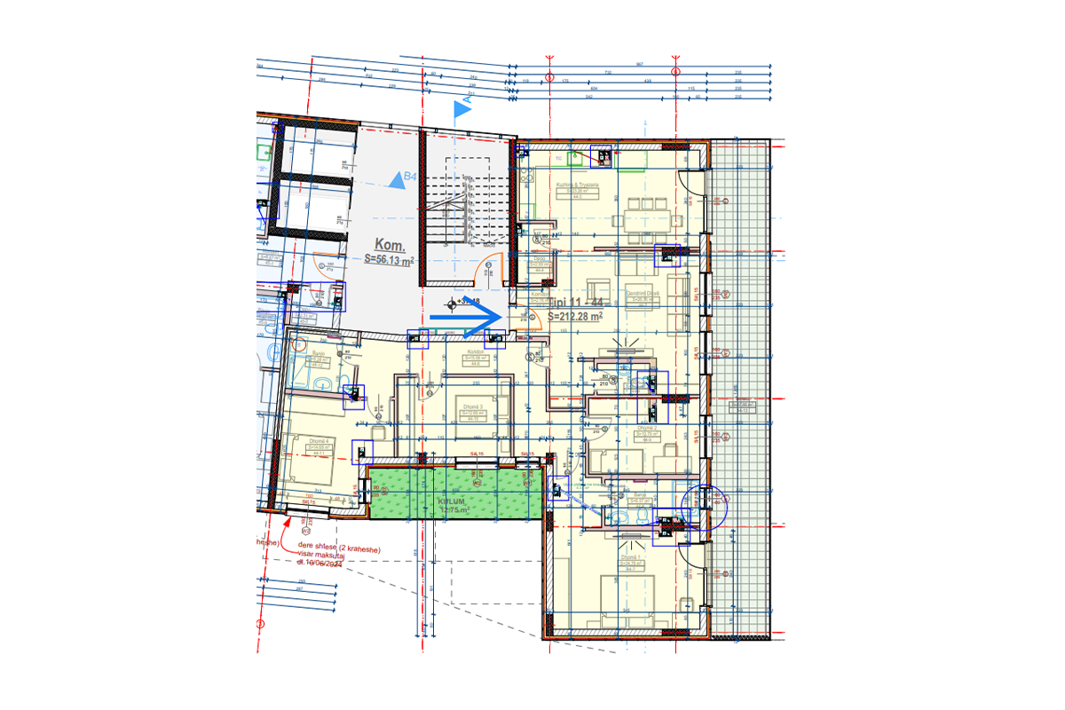
Zum Verkauf steht eine Wohnung mit einer Wohnfläche von 212,28 m² und einer Terrasse mit einer Fläche von 37,88 m², gelegen im Viertel Muhaxherëve, in der Straße "Lordi Bajron", im Komplex "Cima Residence", gebaut von Cima Construction.
Die Wohnung hat eine Ausrichtung nach Osten und Süden und folgende Anordnung der Innenräume: Wohnzimmer, Küche, vier Schlafzimmer, zwei Badezimmer, Toilette, Abstellraum und Terrasse.
Das Heizsystem wird durch unter dem Boden installierte elektrische Energie ermöglicht.
Das Gebäude, in dem sich die Wohnung befindet, ist mit einem Aufzug ausgestattet und bietet ausreichend Parkraum.
Die Wohnung befindet sich in einem der gefragtesten Viertel, mit Grünflächen, in der Nähe des Zentrums der Familienmedizin, mit direktem Zugang zu den Hauptstraßen und in der Nähe aller notwendigen Dienstleistungen.

Durch das Ausfüllen des folgenden Formulars wird unser Agent Sie über Ihre Fragen informieren!