Sie haben keine gespeicherten Anzeigen in Ihrer Favoritenliste.
Magjistralja Prishtinë - Mitrovicë Prishtinë


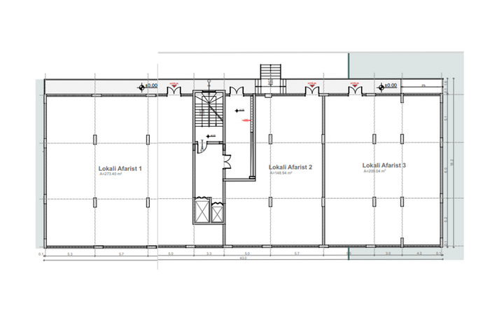
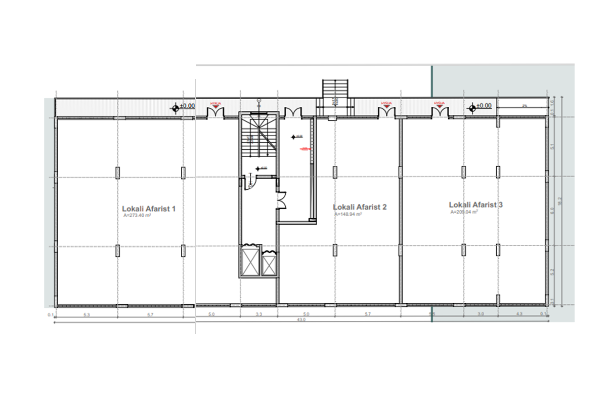
Zur Miete angeboten wird ein Lokal mit einer Fläche von 631,38 m² an der Magistrale Prishtinë - Mitrovicë, bei Eurogoma, gebaut von Universal Bau Group, im Komplex Porta e Prishtinës.
Das Lokal hat eine Ausrichtung nach Westen, Süden und Norden und verfügt über drei große nutzbare Räume.
Das Lokal hat eine Heizungsanlage mit Termokos und elektrischer Energie.
Das Lokal bietet Parkmöglichkeiten und befindet sich an einem leicht zugänglichen Standort, der sich für die Entwicklung von Geschäftstätigkeiten eignet.

Durch das Ausfüllen des folgenden Formulars wird unser Agent Sie über Ihre Fragen informieren!