Fushë Kosovë Fushë Kosovë





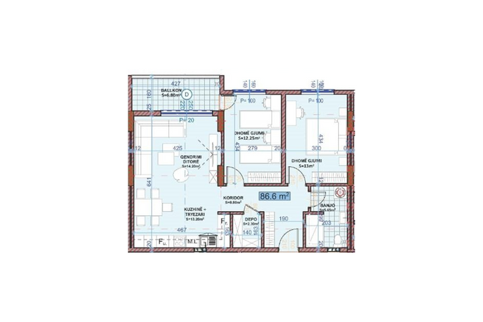
Zum Verkauf steht eine Wohnung mit einer Fläche von 86,6 m², gelegen in Fushë Kosovë, in der Straße "Fazli Grajqevci", gebaut von Andi Group.
Die Wohnung hat folgende Anordnung der Innenräume: Wohnzimmer, Küche, zwei Schlafzimmer, ein Badezimmer, Abstellraum und Balkon.
Die Heizungsanlage wird mit elektrischer Energie betrieben.
Das Gebäude, in dem sich die Wohnung befindet, ist mit einem Aufzug ausgestattet und bietet ausreichend Parkmöglichkeiten.
Die Wohnung befindet sich in einer gut entwickelten Gegend, mit direktem Zugang zur Hauptstraße sowie in der Nähe aller notwendigen Dienstleistungen, Gesundheitszentren, Schulen, Kindergärten und Supermärkten.
*Die Bauarbeiten des Komplexes sollen im Jahr 2026 abgeschlossen sein.

Durch das Ausfüllen des folgenden Formulars wird unser Agent Sie über Ihre Fragen informieren!