Fushë Kosovë Fushë Kosovë



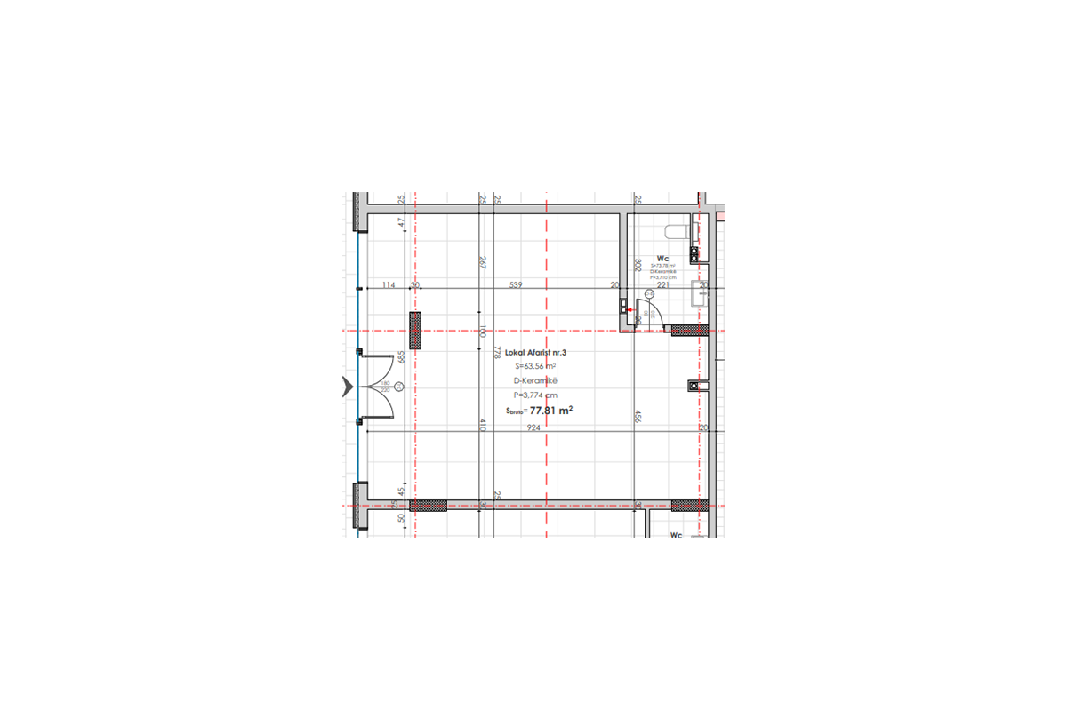
Zum Verkauf steht ein Lokal mit einer Fläche von 77,8 m², gelegen in Fushë Kosovë, in der Straße "Vëllezërit Gërvalla", gebaut von Thaqi Group, im Deutschen Komplex.
Das Lokal hat eine Ausrichtung nach Westen und Norden und verfügt über folgende Anordnung der Innenräume: es gibt einen großen nutzbaren Bereich für geschäftliche Aktivitäten und ein Badezimmer.
Die Heizungsanlage wird durch unter dem Boden installierte elektrische Energie ermöglicht.
Das Lokal befindet sich in einer sehr entwickelten Gegend, mit direktem Zugang zur Hauptstraße sowie in der Nähe aller notwendigen Dienstleistungen, Gesundheitszentren, Schulen, Kindergärten und Supermärkten.
*Die Bauarbeiten des Komplexes sollen Anfang 2026 abgeschlossen sein.

Durch das Ausfüllen des folgenden Formulars wird unser Agent Sie über Ihre Fragen informieren!