Prishtina e Re Prishtinë



Zum Verkauf steht eine Wohnung mit einer Fläche von 121,7 m², gelegen in Prishtina e Re, in der Straße „Muhamet Malsori“, gebaut von Limit Project.
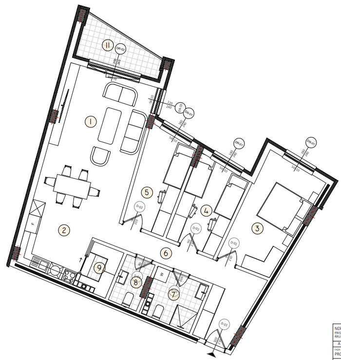
Die Wohnung hat folgende Raumaufteilung: Wohnzimmer, Küche, drei Schlafzimmer, ein Badezimmer, eine Toilette, einen Abstellraum und einen Balkon.
Die Heizungsanlage wird durch Termokos bereitgestellt.
Das Gebäude, in dem sich die Wohnung befindet, ist mit einem Aufzug ausgestattet, bietet ausreichend Parkmöglichkeiten und bietet eine Garage gegen Aufpreis.
Die Wohnung befindet sich in einem Gebiet, das im Bau ist und das Potenzial hat, eines der entwickelten Gebiete der Stadt mit abgeschlossener Infrastruktur zu werden, was diesen Standort sehr geeignet für Wohnzwecke macht.
*Der Komplex wird voraussichtlich 2026 fertiggestellt.

Durch das Ausfüllen des folgenden Formulars wird unser Agent Sie über Ihre Fragen informieren!