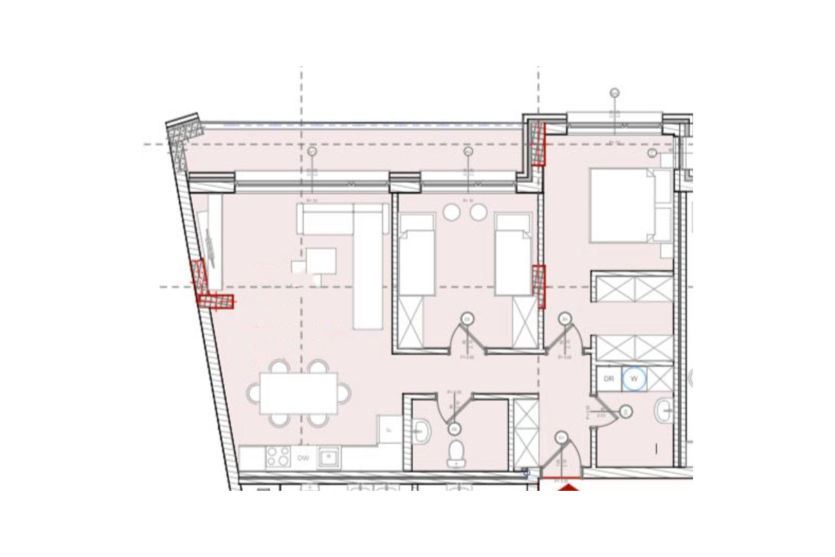
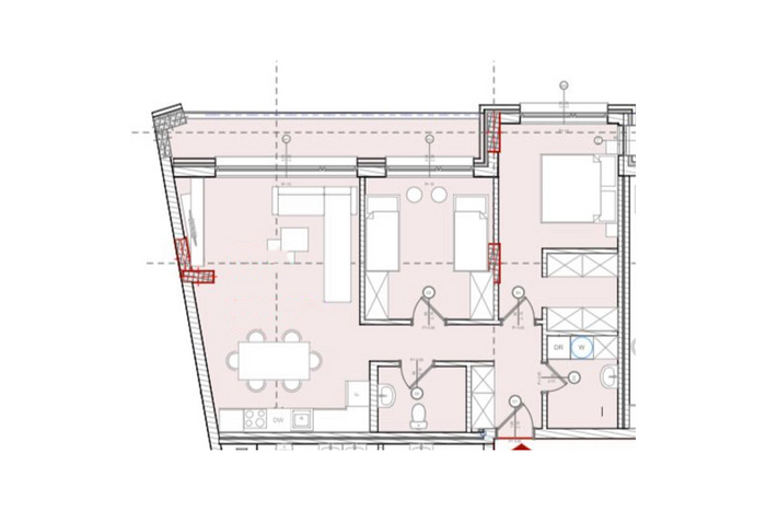
Zum Verkauf steht eine Wohnung mit einer Fläche von 97,38 m², gelegen in Prishtina e Re, in der Straße "Holger Petersen", gebaut von der Maloku Group, im Komplex Prishtina e Re.
Die Wohnung hat eine Ausrichtung nach Westen und Norden und verfügt über folgende Anordnung der Innenräume: Wohnzimmer, Küche, zwei Schlafzimmer, ein Badezimmer, ein WC und einen Balkon.
Die Heizungsanlage wird elektrisch betrieben, und das Gebäude, in dem sich die Wohnung befindet, verfügt über einen Aufzug.
Die Wohnung befindet sich in einem Gebiet, das im Bau ist und das Potenzial hat, eines der entwickelten Gebiete der Stadt mit abgeschlossener Infrastruktur zu werden, was diesen Standort sehr geeignet für Wohnzwecke macht.
*Der Komplex wird voraussichtlich im August 2027 fertiggestellt.
Sehr guter Preis
Guter Preis
Faire Preis
Erhöhter Preis
Hoher Preis
Dieser Preisvergleich dient nur zur Orientierung und ist nur zur Information gedacht.
Der Betrag, den Sie selbst bezahlen. Der Rest wird als Kredit berechnet.
Anzahl der Jahre für die Rückzahlung des Kredits.
Netto-Monatseinkommen der Familie (gesamt).
Z.B. 5 oder 5.5. Kann später automatisch je nach Bank ausgefüllt werden.
Kreditbetrag
89,589.6€
Anzahlung (%)
20,0%
Monatliche Rate
950.24€
Vlerësimi i ngarkesës së kredisë
95,0% - des Einkommens gehen in die Rate. Die meisten Banken werden es möglicherweise nicht genehmigen.
Dieser Rechner dient nur zu Informationszwecken und bietet eine vorläufige Schätzung.

Durch das Ausfüllen des folgenden Formulars wird unser Agent Sie über Ihre Fragen informieren!