Prishtina e Re Prishtinë



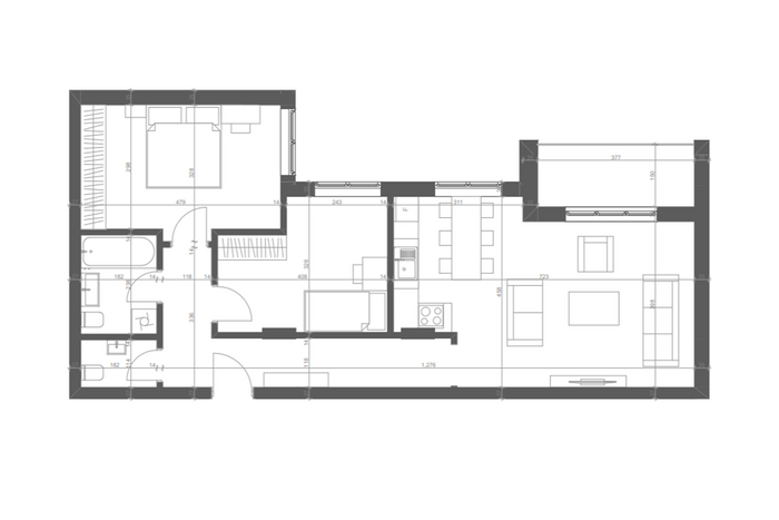
Ofrohet për shitje banesa me sipërfaqe 91.7m², me lokacion te Prishtina e Re, në Rrugën “Holger Petersen”, në kompleksin Park Residence, ndërtim nga Berisha Group.
Banesa ka orientim nga jugu dhe ka këtë renditje të hapësirave të brendshme: qëndrim ditor, kuzhinë, dy dhoma gjumi, banjo, tualet dhe ballkon.
Sistemin e ngrohjes e ka të mundësuar me energji elektrike të instaluar nën dysheme.
Ndërtesa ku ndodhet banesa është e pajisur me ashensor dhe ka hapësirë të mjaftueshme për vendparkim.
Banesa gjendet në një zonë e cila është duke u ndërtuar me potencial të jetë një ndër zonat e zhvilluara të qytetit me infrastrukturë të përfunduar, duke e bërë këtë lokacion shumë të përshtatshëm për banim.
*Kompleksi është në ndërtim e sipër dhe pritet të përfundojë ndërtimet në fund të vitit 2026.

Duke mbushur formën e mëposhtme agjenti ynë do të ju informojë rreth pyetjeve tuaja!