Lagjja Kodrina Prishtinë


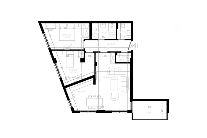
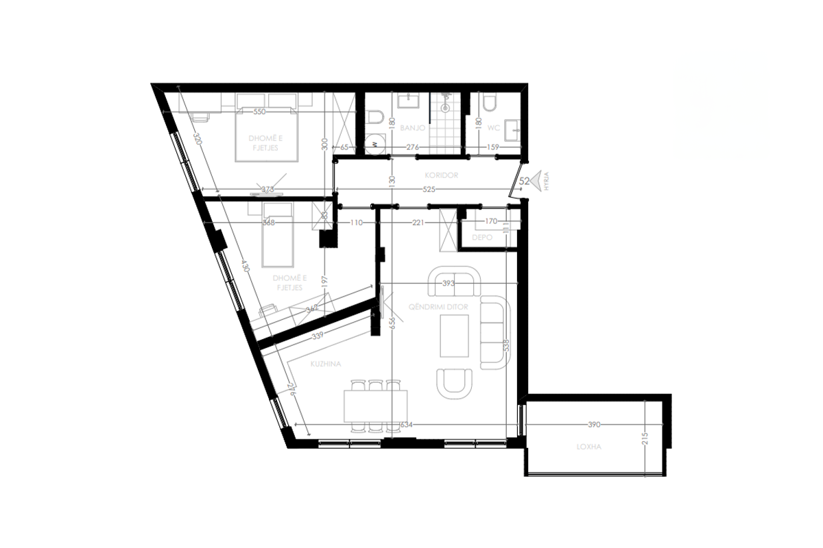
Ofrohet për shitje banesa me sipërfaqe 90m², me lokacion te Rruga C, në Lagjen Kodrina, ndërtim nga Tregtia.
Banesa ka orientim nga perëndimi dhe ka këtë renditje të hapësirave të brendshme; qëndrim ditor, kuzhinë, dy dhoma gjumi, banjo, tualet, depo dhe ballkon.
Sistemin e ngrohjes e ka të mundësuar me energji elektrike.
Ndërtesa ku ndodhet banesa është e pajisur me ashensor dhe ofron hapësirë për vendparkim.
Të gjitha ndërtesat janë të lidhura me rrjetin e gjelbërimit, si të bllokut ashtu edhe të zonës.
Hapësirat e gjelbëruara në këtë lagje kanë sipërfaqe, forma dhe funksione të ndryshme, ku të gjitha ndikojnë në përmirësimin e cilësisë së mjedisit të zonës.
Banesa ndodhet në një zonë në ndërtim e sipër, me qasje të afërt në rrugët kryesore si dhe në afërsi me të gjitha shërbimet e nevojshme.
*Kompleksi pritet të përfundojë ndërtimet në fund të vitit 2026.

Duke mbushur formën e mëposhtme agjenti ynë do të ju informojë rreth pyetjeve tuaja!